114 McKinnon Terrace, Christmas Hills

$1,195,000

3 2 3 32,500 m2

Character-Filled Home on 8 Acres of Natural Bushland

Tucked away in a peaceful pocket of Christmas Hills, this character-filled residence set on 8 acres offers a rare opportunity to embrace a private bushland lifestyle.

Just minutes from Yarra Glen and less than an hour from Melbourne's CBD, it sits on the doorstep of the Yarra Valley, surrounded by rolling hills, native forests and walking trails, with the Yarra Ranges, national parks and celebrated wine and food experiences within easy reach.

Surrounded by native vegetation and abundant wildlife, the property offers a true sense of immersion in nature. Predominantly natural bushland, the land provides a low-maintenance acreage lifestyle that celebrates rural conservation values while creating a tranquil and restorative environment to call home. Kangaroos, native birds and other local wildlife are frequent visitors, and the peaceful setting delivers a level of privacy and calm that is increasingly rare so close to Melbourne.

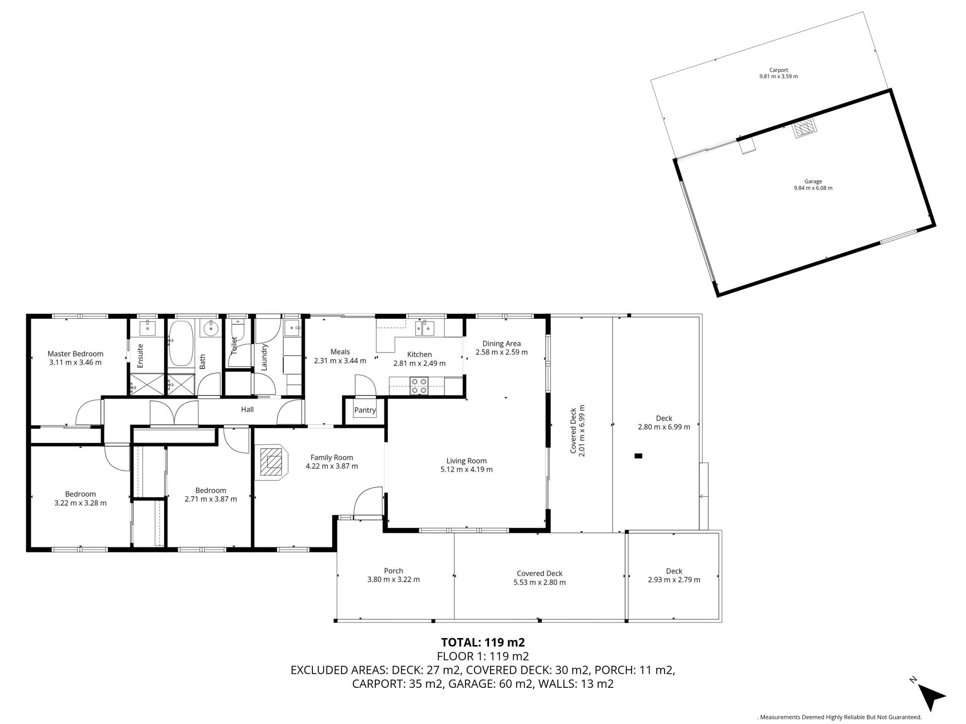
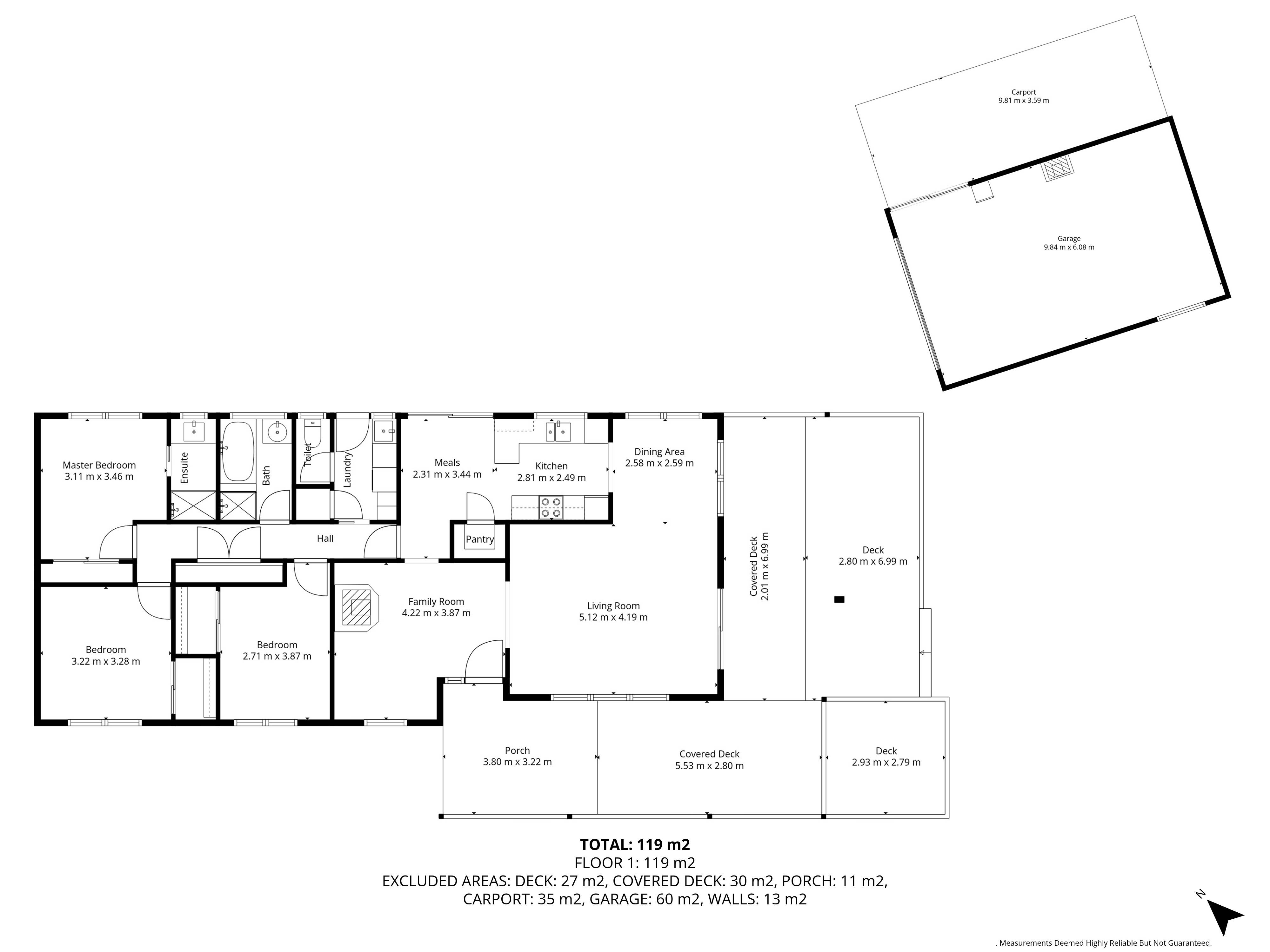
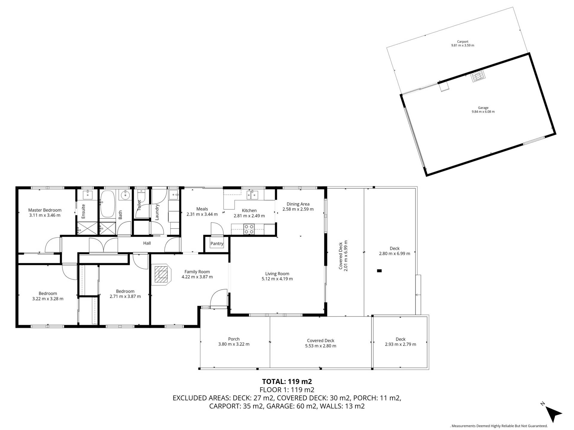
The three-bedroom, two-bathroom home has been thoughtfully designed to embrace its natural surroundings. A covered alfresco entertaining area with jacuzzi spa flows effortlessly into three living zones, including a light-filled kitchen and meals area, a spacious family living room, and a formal lounge with wood heater-perfect for cosy winter evenings. Four split-system air conditioners ensure comfort throughout the seasons.

Approximately 1.6 acres surrounding the residence includes the home, secure parking areas, and a picturesque dam with jetty, while the remainder of the property remains natural bushland. Around 1 km of walking trails meander through the land, gently rising from a gully with a seasonal watercourse and inviting exploration of the landscape.

Externally, storage and parking are well catered for with a 6m x 9m double garage and a 3m x 9m carport.

Offering privacy, sustainability, and a profound connection to the natural environment-while remaining within easy reach of the city-this is a truly exceptional lifestyle opportunity in one of the region's most peaceful bushland settings.

All this could be yours, but don't wait: text 114MCKINNON to 0448 820 022.

Features

Deck Outdoor entertainment area Carport Dam Decking Spa Wood Shed Wood heating
3 2 3 32,500 m2

Details

Address 114 McKinnon Terrace, Christmas Hills
Price $1,195,000
Property Type Residential
Property ID 738
Category House
Land Area 32,500 m2
Floor Area 126 m2

Inspections

Saturday 18 April 11:15 AM - 11:45 AM

Tools

Share This Property