61 Yarraview Road, Yarra Glen

$3,650,000 - $3,900,000

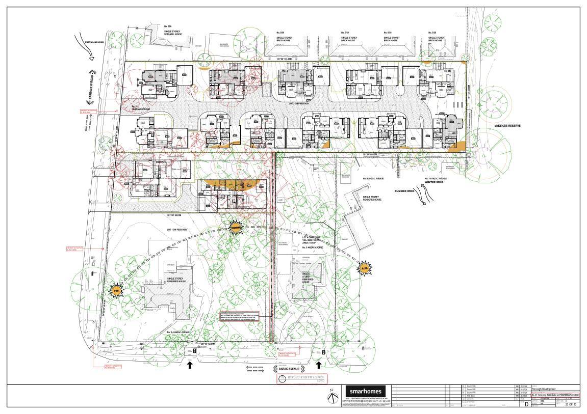
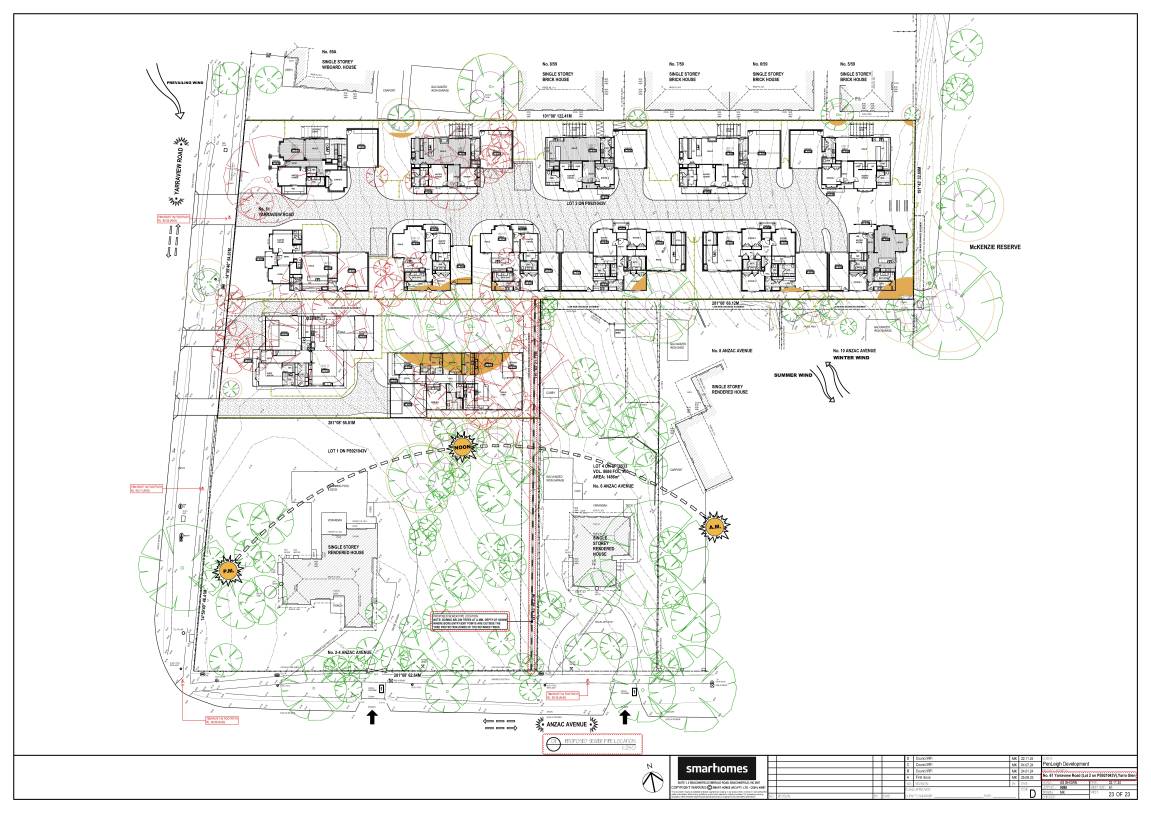
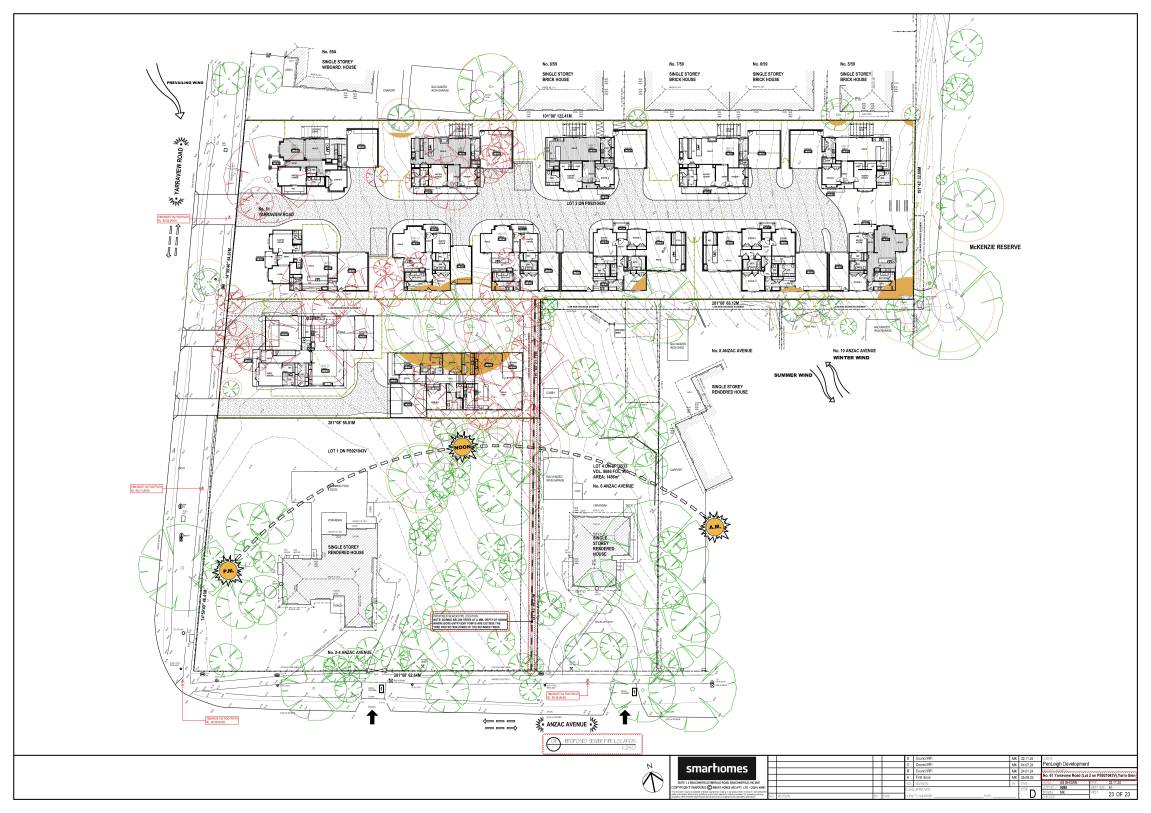
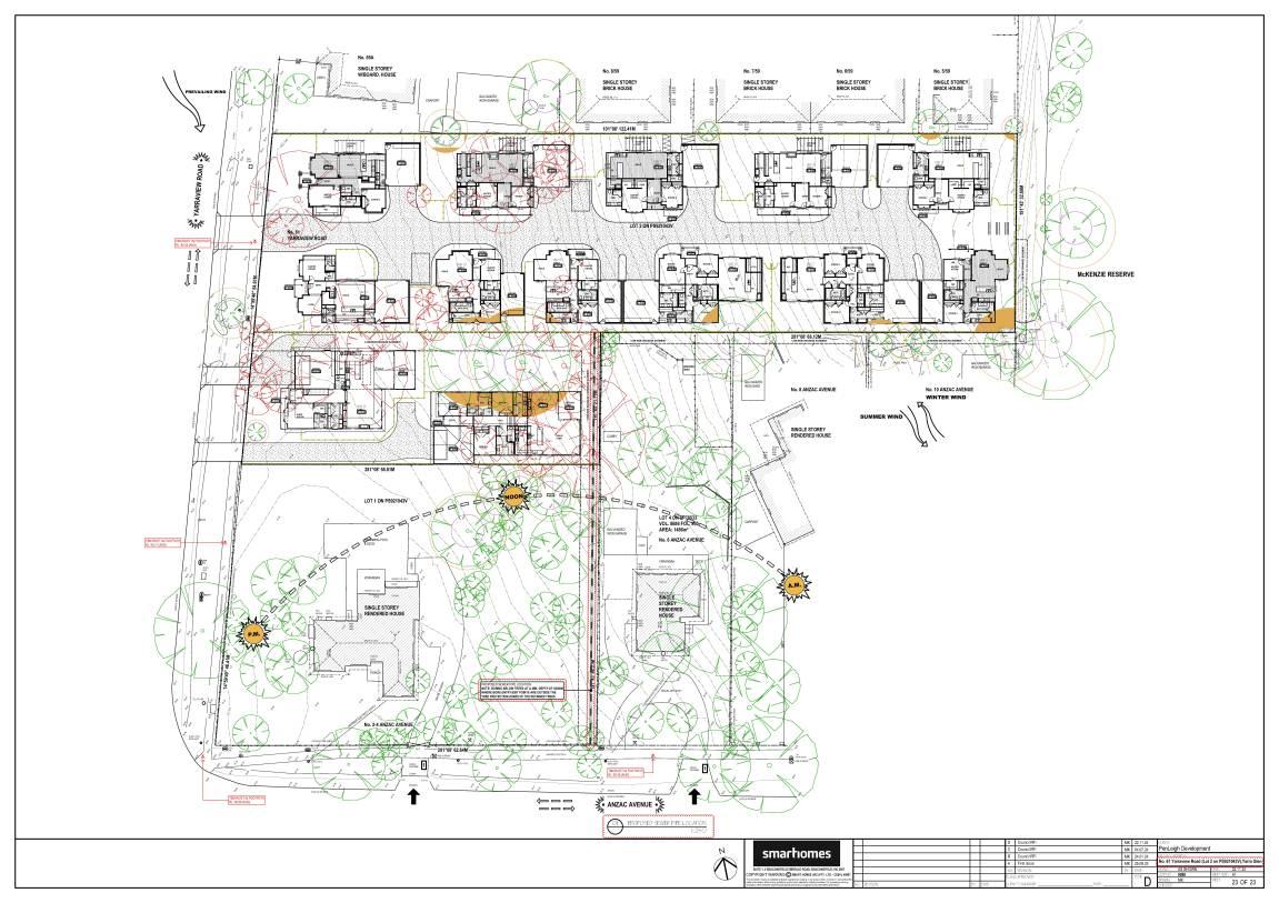
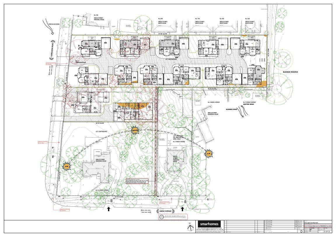
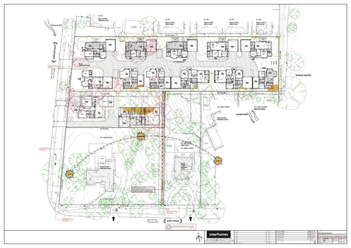
30 20 23 5,301 m2

13 UNIT SUBDIVISION YARRA GLEN

Calling bespoke builders or developers seeking a project with Development Approval: the designers of "Penleigh" have saved countless hours of consultation with Planning and technical design, furnishing you with a lucrative project in one of Melbourne and the Yarra Valley's most sought-after postcodes.

+ Electrical pits installed for servicing both lots
+ Legal point of discharge prepared for stormwater
+ Engineered Designed Drainage Plan (endorsed)
+ Construction Management Plan completed
+ Waste Management Plan completed
+ Landscape Plan completed
+ Sustainable Design Assessment completed

Yarra Glen is one of those beautiful, leafy broad main-street kind of towns, on the banks of the Yarra River with a 3012 resident population of broad age group, employed across a range of professional corporate and labour sectors, with 20 per cent retired. Only 10 min to Lilydale, on 2 arterial roads to Melbourne, its surrounding natural beauty attracts families, professionals and retirees seeking a well-serviced town close to public transport (16 min to Lilydale Train Station, on a bus line) while maintaining a small-town feeling. It is this natural beauty that inspired the name "Penleigh", taken from Impressionist painter Penleigh Boyd whose family lived in the district and who painted the River many times.

The 5301 sqm site has been approved for 13 lots, accommodating a diverse offering of dwellings envisioned in modern Australian country design with a Hamptons twist:

+ Five x 4 bedroom, 2 bathroom double storey homes with double garages
+ Four x 2 bedroom, 2 bathroom single storey homes with single/double garages
+ Two x 3 bedroom, 2 bathroom single/double storey homes with double garages
+ Two x premium 4 bedroom, 2 bathroom double/single storey homes with double garages

Given the metrics of the local market - limited further development, surrounded by Green Wedge Yarra Valley, close to services, open to both the north and east residential growth corridors - these homes are sure to attract premium consumer interest.

Invest into one of the last developments in a tightly held premier postcode – text PENLEIGH to 0448 820 022 today.
30 20 23 5,301 m2

Details

Address 61 Yarraview Road, Yarra Glen
Price $3,650,000 - $3,900,000
Property Type Residential
Property ID 708
Category House And Land Package
Land Area 5,301 m2

Tools

Share This Property