17 Stephens Road, Healesville

$1,395,000

4 2 6 2,000 m2

Welcome to "Hiawatha" – Space, Comfort & Family Living

Call for your own Private Inspection - Originally built in 1909, "Hiawatha" is a Federation-style home that blends character and history with modern updates-perfect for families who want space, flexibility, and lifestyle all in one.
The History of "Hiawatha''
Hiawatha was built around 1909 by Florence Mabel Wood as a substantial guesthouse. It became part of Healesville's thriving early guesthouse era, which grew in popularity especially after World War I. Florence Wood ran the property until her death in 1932, during a time when the guesthouse trade declined as car ownership increased and seaside holidays drew visitors away. Hiawatha is recognised for its local historical and architectural significance, noted for its generous scale, Federation style, and distinctive Dutch gable roof.
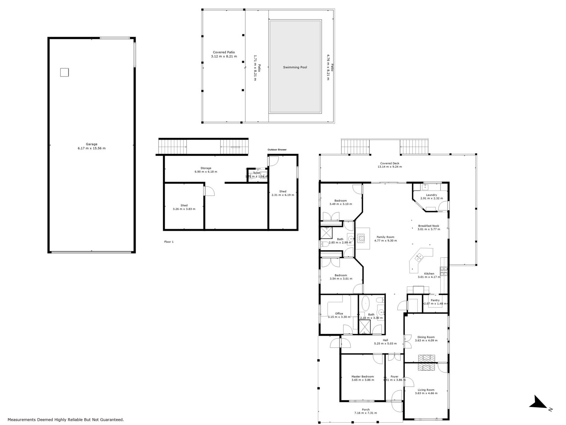
A Home Full of Options
Inside, you'll find a welcoming floorplan with plenty of room to grow. The front of the home offers a classic sitting room and dining room, which can also be used as extra bedrooms if needed. The main bedroom sits alongside a bathroom and a flexible room that works well as a study, nursery, or another bedroom.
At the heart of the home, the updated kitchen-with walk-in pantry-flows into the light-filled family room. A wood heater keeps the space cozy, while double doors open to a wide rear deck-great for family meals or entertaining friends. Two more bedrooms with a shared bathroom complete the family layout.
All year round comfort is provided by gas ducted heating, 5 reverse cycle split systems, not to mention the wood heater in the family room and 2 fireplaces in the front sitting room and formal dining room adding to the character.
Outdoor Living for All Seasons
The backyard is made for fun and relaxation: a solar heated pool for summer days, a built-in spa for evenings under the stars, and a covered seating area for BBQs and gatherings. There's even an outdoor shower and toilet for convenience. The chickens have not been forgotten with a comfortable coup in the rear yard.
Practical Extras
The large garage fits up to six cars and still has room for a workshop or hobby space. Sitting on a huge 2,000 m² block, the property offers plenty of garden space, play areas for kids, or potential for future plans (STCA)-all while being close to town.
Why Families Love "Hiawatha"
Character home with flexible living spaces
Modern kitchen and open family areas
Pool, spa, and outdoor entertaining spaces
Expansive block and oversized garage
Convenient town location

"Hiawatha" isn't just a house-it's a family home with room to grow, play, and create lasting memories.

Features

Carpet Close to Schools Close to Shops Close to Transport Decking Fenced in-Ground Pool Floorboards Car Parking - Surface
4 2 6 2,000 m2

Details

Address 17 Stephens Road, Healesville
Price $1,395,000
Property Type Residential
Property ID 703
Category House
Land Area 2,000 m2

Inspections

Saturday 7 March 12:00 PM - 12:30 PM

Tools

Share This Property