Sold

1392 Myers Creek Road, Toolangi

SOLD for $875,000

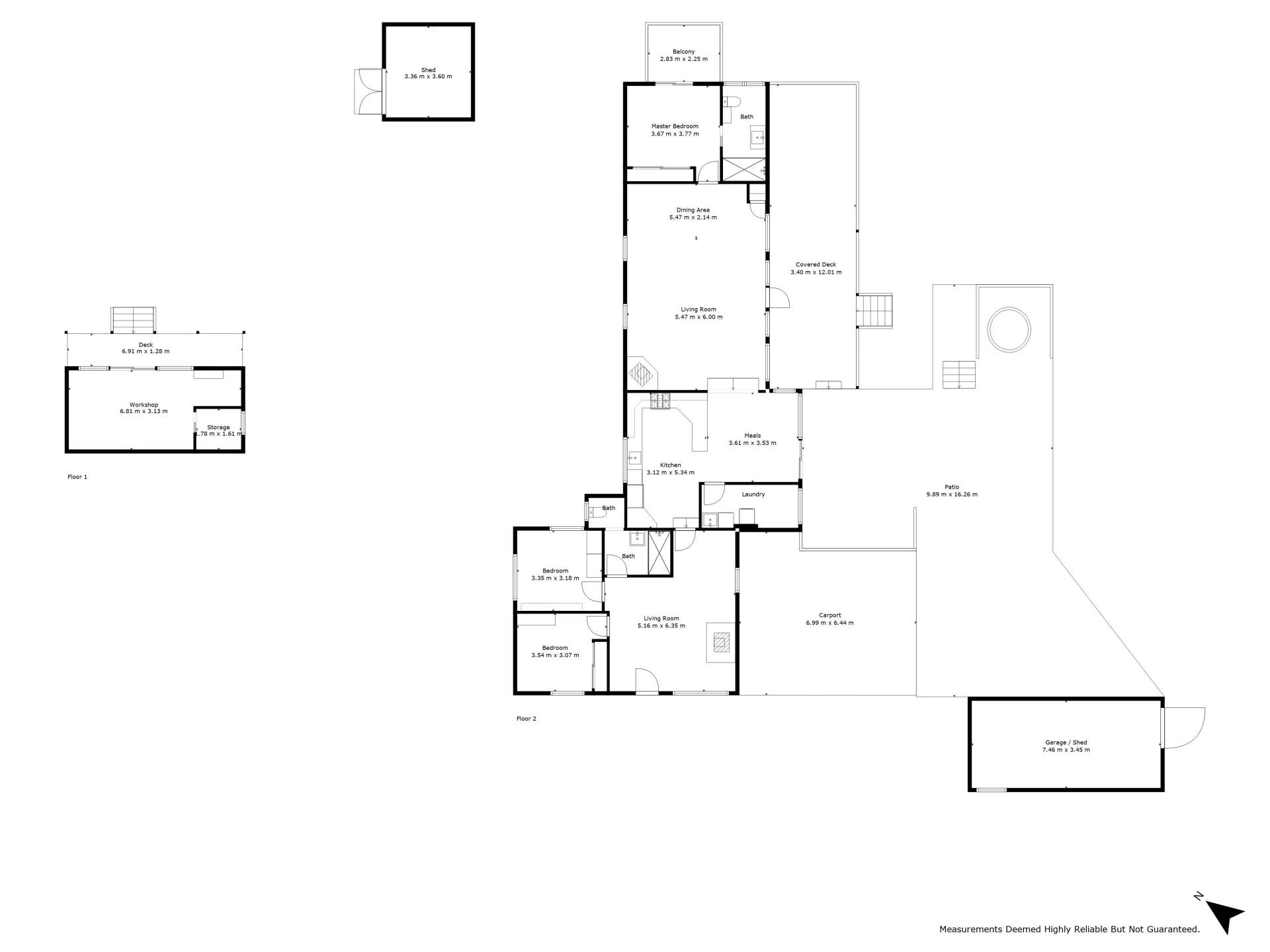
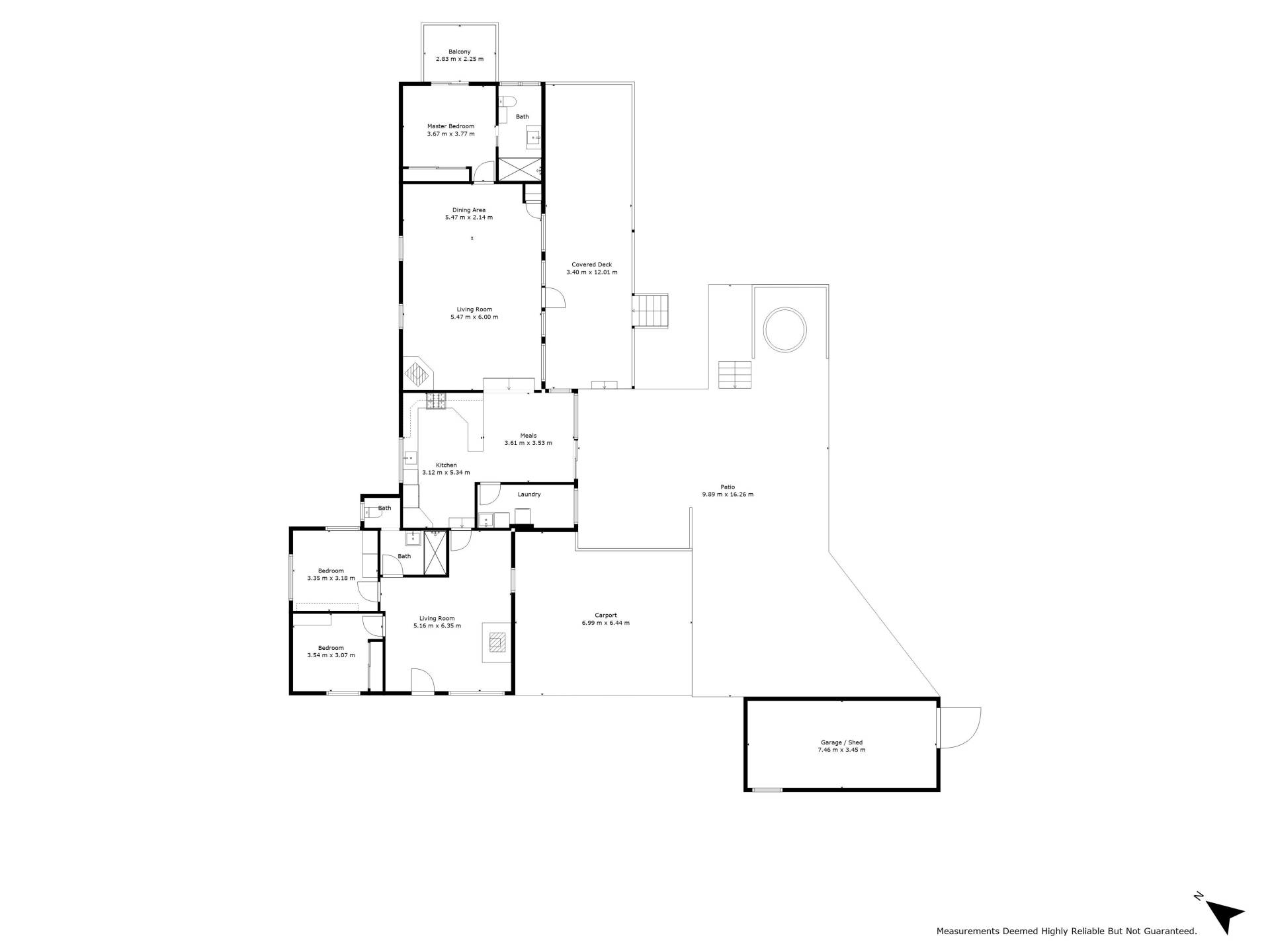
4 2 4 4,104 m2

DUAL OCCUPANCY - 1 ACRE

Conveniently 15 minutes to Healesville or Yarra Glen, this renovated home offers space in abundance.

The home comprises 3 bedrooms, 2 bathrooms (inc ensuite to master) and 2 huge living areas. It could be easily separate into 2 self-contained spaces for the growing family or independent living, with separate access to each end of the house.

The kitchen and laundry have been remodelled whilst retaining the character slate floors and bluestone walls that gives this home charm. The home is heated and cooled by 2 split systems, ducted heating and 2 wood heaters.

Entertain friends and family with summer barbecues or winter fire pits on the undercover deck. In addition, there is a renovated bungalow perfect for a home office, games room or gym. It has its own split system and ceiling fan.

The property taps into Toolangi's famous fresh springwater with a bore and Grundfos pump, providing the property with unlimited water.

A large greenhouse and multiple garden beds suits the hobby farmer perfectly. There are established gardens and fruit trees that are visited daily by the local king parrots and bower birds. The property is fenced into 2 paddocks.

Text 1392MYERS to 0448 820 022.

Features

Fenced Outdoor entertainment area Secure Parking Study
4 2 4 4,104 m2

Details

Address 1392 Myers Creek Road, Toolangi
Price SOLD for $875,000
Property Type Residential
Property ID 556
Category House
Land Area 4,104 m2
Floor Area 306 m2

Tools

Share This Property