Sold

3248 Healesville-Kinglake Road, Kinglake

SOLD for $765,000

3 2 2 1,647 m2

Family Home with Space and Style-An Opportunity Not to Miss

Discover 3248 Healesville-Kinglake Road, Kinglake-perfect for families, investors, or those seeking a lifestyle change. This 2010 beautifully crafted Primeline Summit Hardiplank home is conveniently located within walking distance to the town centre.

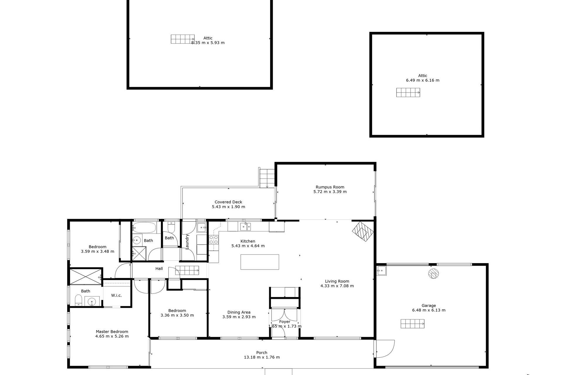
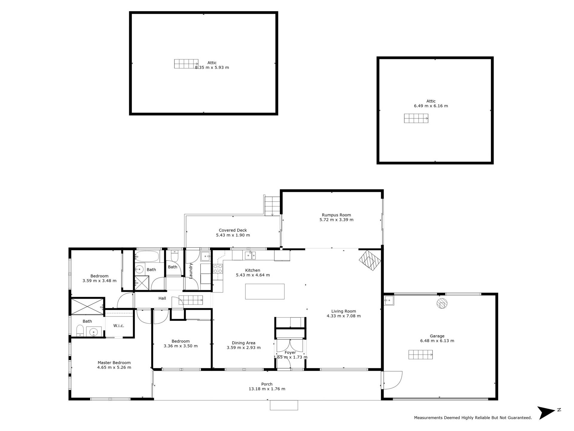
Set on a generous 1647m² block with dual access, the property features 3 bedrooms, 2 bathrooms, an open-plan kitchen, living, and dining area, and a separate rumpus room. The master suite includes a walk-in robe and en suite with a double shower, while the other bedrooms offer built-in robes. Enjoy the natural beauty from the front and back verandas, perfect for peaceful mornings or relaxing evenings.

Modern comforts include 9-foot ceilings, surround sound wiring, Caesarstone benchtops, a Warmbrite wood heater with heat transfer, ceiling fans, and reverse cycle air conditioning.

EXTRA Storage is available with convenient attic access via the hallway PLUS in the 6 x 6m garage complete with a potbelly heater, sink, and workstation.
Externally, the property offers over 55,000 litres of water storage, a 4m x 4m shed, and two woodsheds-ideal for self-sufficient living.

Don't miss this opportunity to own a slice of tranquil country living.

Contact Will Verhagen for a private inspection today!

Features

Fenced Fireplace Water Tank Carpet Close to Shops Close to Transport Hardieplank Hardwood Floorboards Landline
3 2 2 1,647 m2

Details

Address 3248 Healesville-Kinglake Road, Kinglake
Price SOLD for $765,000
Property Type Residential
Property ID 524
Category House
Land Area 1,647 m2
Floor Area 200 m2

Tools

Share This Property